Appartamento 3 letto
Caratteristiche

Imola Centro Storico.
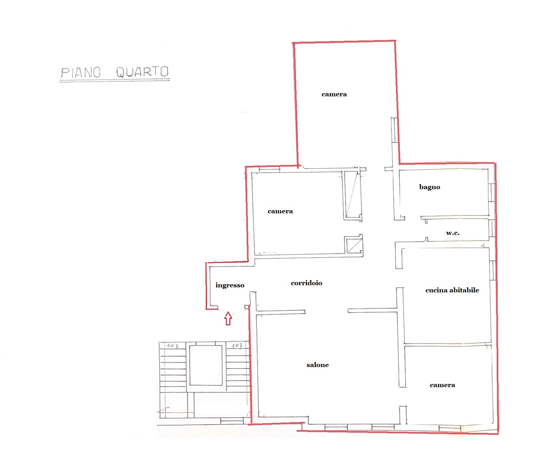
In splendida posizione a due passi dal centro e dalla stazione ferroviaria, appartamento al quarto ed ultimo piano con ascensore, panoramico e luminoso. In ottimo stato di manutenzione è composto da ampio ingresso arredabile, salone con doppia finestra, cucina abitabile di ampia metratura, tre camere da letto matrimoniali, due bagni finestrati di cui uno con bagno/doccia iacuzzi, disimpegno notte con armadiature a muro, ripostiglio/soffitta, cantina, posto auto di proprietà nel corte interna accessibile con cancello automatizzato.
Infissi in legno bianchi, porte in legno massiccio color rovere serigrafate, parquet di pregio nella zona notte e nella zona giorno, riscaldamento autonomo.
Palazzina completamente recentemente rivista, con accesso pedonale e accesso carrabile.
Possibile di acquisto a parte di ampio garage nel medesimo contesto, informazioni in agenzia.
Libero subito.
No barriere architettoniche.
Riferimento U400




